School of Architecture at SDSU

2023

San Diego State University, San Diego, CA 92115

Public Interior Design Final | ART 552 Fall 2023 | James Brown, Instructor

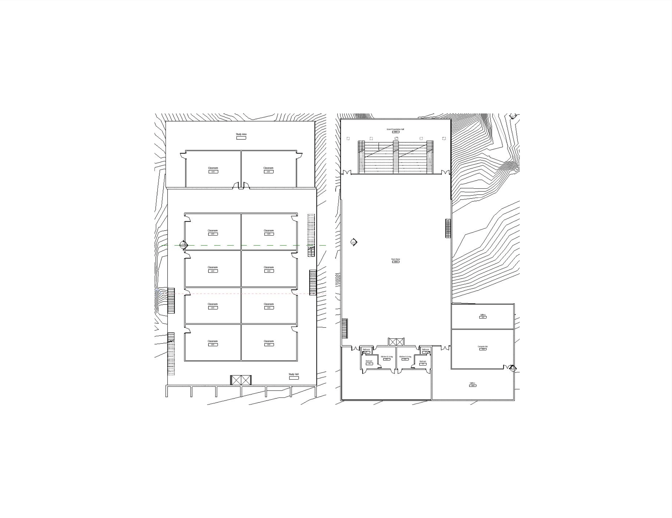
San Diego State University at the moment does not have a school of architecture and remains under the School of Art and Design. The proposed project will incorporate 45,000 square feet of classrooms, lounging areas, a grand presentation hall and even room for artists-in-residency. SDSU is under Spanish colonial style and this new building will echo and incorporate this style into its design features. Architect students will feel surrounded by nature as they settle in an area surrounded by large pine trees. The focus and goal of this building will be to nurture the creativity and inspiration within the walls of the building as well as the encompassing surroundings.